首页
新房
房产资讯
房贷计算
登录
/
注册
您的位置:
首页
>
新房
>
荣盛东方府
>
户型详细
荣盛东方府
尾盘
宜居生态
楼盘主页
楼盘动态
在售户型
历史价格
楼盘相册
楼盘详情
周边配套
全部(
0
)
3室(
3
)
←
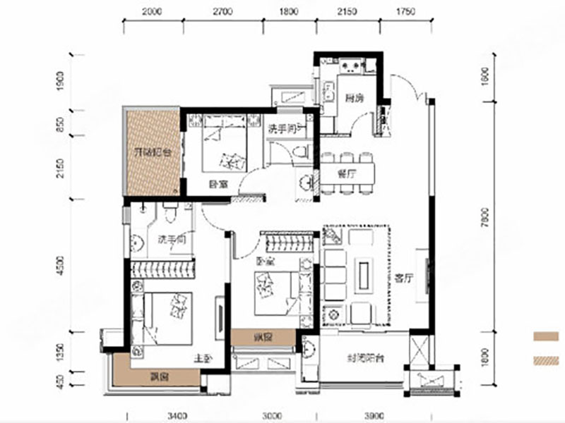
3室2厅2卫
117.52㎡
3室2厅2卫
142.74㎡
3室2厅2卫
117.52㎡
→
均价:
7750
元/㎡
居室:
3室2厅2卫1厨
面积:
117.52㎡
购房热线
4006123572转218