首页
新房
房产资讯
房贷计算
登录
/
注册
您的位置:
首页
>
新房
>
万江北宸之光
>
户型详细
万江北宸之光
尾盘
低密居所
宜居生态
楼盘主页
楼盘动态
在售户型
历史价格
楼盘相册
楼盘详情
周边配套
全部(
0
)
3室(
3
)
4室(
1
)
←
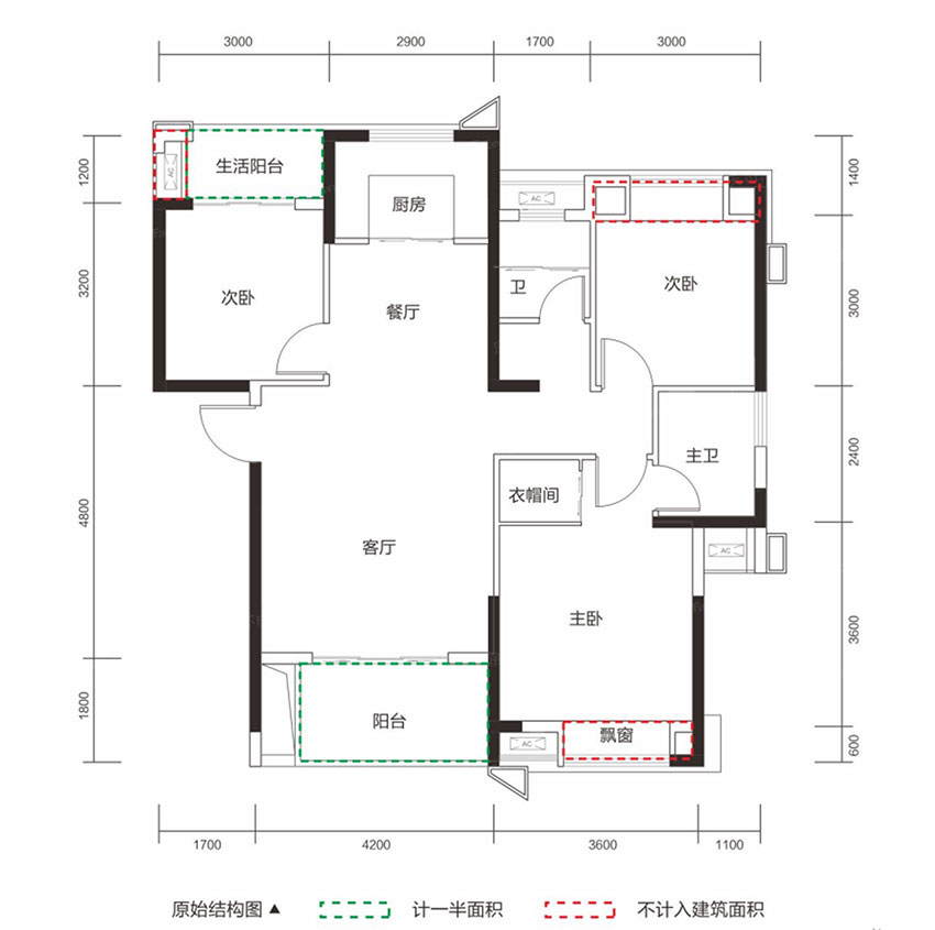
3室2厅2卫
95.00㎡
3室2厅2卫
119.00㎡
3室2厅2卫
113.00㎡
4室2厅2卫
121.00㎡
→
均价:
5000
元/㎡
居室:
3室2厅2卫1厨
面积:
113.00㎡
购房热线
4006123572转208