首页
新房
房产资讯
房贷计算
登录
/
注册
您的位置:
首页
>
新房
>
梧桐庄园
>
户型详细
梧桐庄园
尾盘
低密居所
宜居生态
楼盘主页
楼盘动态
在售户型
历史价格
楼盘相册
楼盘详情
周边配套
全部(
0
)
2室(
2
)
3室(
1
)
4室(
2
)
5室(
1
)
←
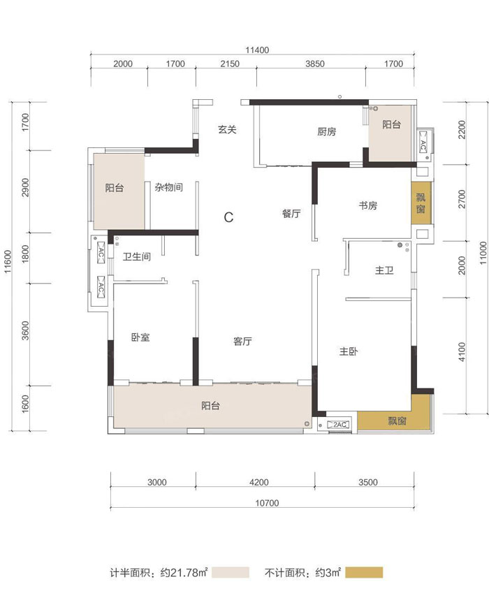
2室2厅2卫
118.00㎡
2室2厅2卫
124.00㎡
3室2厅2卫
133.00㎡
4室2厅2卫
135.00㎡
4室2厅2卫
143.00㎡
5室2厅2卫
143.00㎡
→
均价:
6000
元/㎡
居室:
4室2厅2卫1厨
面积:
135.00㎡
购房热线
4006123572转101