首页
新房
房产资讯
房贷计算
登录
/
注册
您的位置:
首页
>
新房
>
智慧新城
>
户型详细
智慧新城
尾盘
宜居生态
楼盘主页
楼盘动态
在售户型
历史价格
楼盘相册
楼盘详情
周边配套
全部(
0
)
3室(
1
)
4室(
2
)
←
3室2厅2卫
122.19㎡
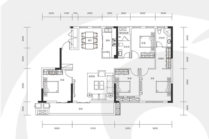
4室2厅2卫
146.30㎡
4室2厅2卫
146.04㎡
→
均价:
5500
元/㎡
居室:
4室2厅2卫1厨
面积:
146.04㎡
购房热线
4006123572转203