您的位置: 首页 > 新房 > 北湖区帝福韵城市之心

帝福韵城市之心

尾盘       小户型投资 低密居所 宜居生态
更新时间: 2026-04-06

帝福韵城市之心

8500元/㎡ 备注:均价仅供参考!

报价时间:2026-04-06,价格有效期:28天 该价格为参考价格,实际价格以开发商为准!

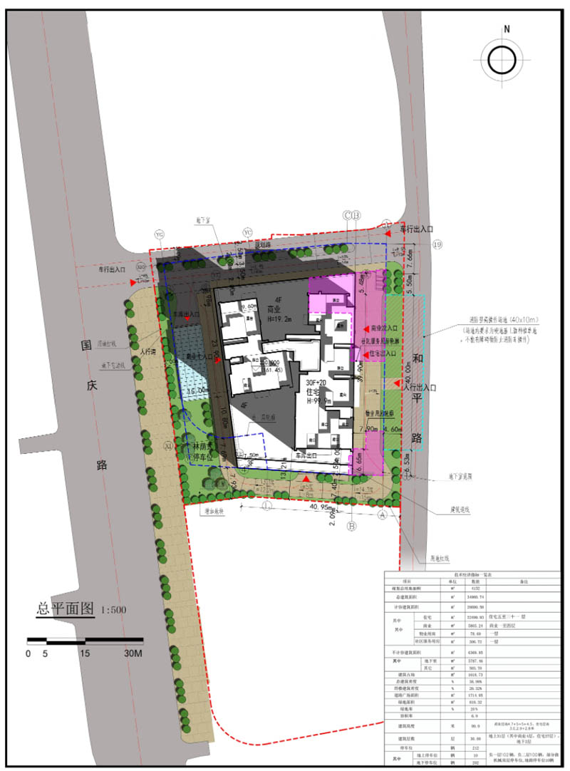
楼盘地址 : 郴州市国庆南路希顿酒店旁
开盘时间 : 2020年08月02日
交房时间 : 2022年05月31日
主力户型 : 1室1厅(35.24㎡) |1室1厅(53.45㎡) |1室2厅(55.35㎡) |1室2厅(58.28㎡) |2室2厅(71.40㎡)
开 发 商 : 郴州市锦隆房地产开发有限公司
苦苦寻找楼盘信息?不如一个电话全部搞定

400-6123-572141

楼盘详情

占地面积: 4026平方米 建筑面积: 34110平方米 开发商: 郴州市锦隆房地产开发有限公司
计划户数: 286户 开盘时间: 2020年08月02日 交房时间: 2022年05月31日
产权年限: 住宅70年,商业40年 建筑类型: 暂无资料 车位情况: 202个
物业类型: 暂无资料 物业公司: 暂无资料 项目地址: 郴州市国庆南路希顿酒店旁
物业费用: 1.80(最终以物业合同为准) 售楼地址: 郴州市国庆南路希顿酒店旁 预售证号: 郴房售许字(2020)第0080号

楼盘动态

查看更多
  • 楼盘动态

    在郴州的房地产市场中,今天,我们就来盘点一下郴州北湖、下湄桥、梨树山、南塔板块那些5字头起的现房,为您的购房之路提供参考。现在购房还能享受 500 元 /㎡的特惠,网签均价为 7665 元 /㎡。帝福韵作为城市之心,

时间轴

  • 开盘日期:2020年08月02日

  • 交房日期:2022年05月31日

  • 北湖区帝福韵城市之心05户型

    在售

    05户型 2室2厅1卫1厨

    建筑面积71.40㎡

  • 北湖区帝福韵城市之心04户型

    在售

    04户型 2室2厅1卫1厨

    建筑面积71.64㎡

  • 北湖区帝福韵城市之心01户型

    在售

    01户型 3室2厅2卫1厨

    建筑面积96.79㎡

  • 北湖区帝福韵城市之心09户型

    在售

    09户型 3室2厅2卫1厨

    建筑面积101.42㎡

  • 北湖区帝福韵城市之心11户型

    在售

    11户型 3室2厅2卫1厨

    建筑面积113.59㎡

  • 北湖区帝福韵城市之心10户型

    在售

    10户型 1室1厅1卫1厨

    建筑面积35.24㎡

  • 北湖区帝福韵城市之心06户型

    在售

    06户型 1室1厅1卫1厨

    建筑面积53.45㎡

  • 北湖区帝福韵城市之心08户型

    在售

    08户型 1室2厅1卫1厨

    建筑面积55.35㎡

  • 北湖区帝福韵城市之心03户型

    在售

    03户型 1室2厅1卫1厨

    建筑面积58.28㎡

周边配套

楼盘介绍

郴州帝福韵城市之心项目位于郴州市主干道国庆南路9号,是郴州繁华的地段之一,项目定位为领业,周边有多家幼儿园和二完小,三完小,九完小,(以教育局划分片区为准),郴州市六中等优质教育配套资源,项目所在地具有综合发展的有利条件和优势,项目的开发将为周边居民生活带来便利,给城市优化添增亮。帝福韵·城市之心致力于打造成集商业休闲于高层住宅为一体的高端商住综合体,全新现代化的独特规划设计,将使它成为国庆南路的标志性建筑。